Parkresidentie, 6 villa’s 0 DRONTEN

0, Parkresidentie, 6 villa's, DRONTEN, FLEVOLAND, Nederland, 8251, Nederland
30239969
30239969
30572422
30239961
30572451
30239965
30239968
30239969
30239969
30572422
30239961
30572451
30239965
30239968

Description

Te Koop Villa’s Parkresidentie

Omzoomd door weidse akkers en boerderijen, vormt de Parkresidentie een geborgen wijk met veel groen. Een gebeid ten zuiden van Dronten met een eigen gezicht en karakter.
De naast gelegen Golfresidentie geeft met haar 18 holes golfbaan, waar u ook gebruik van kunt maken, extra schwung qua dynamiek en fraai glooiend landschap.

Parkresidentie is een plek waar jong en oud zich thuis gaan voelen. Een plek waar ruimte, geborgenheid en veiligheid voorop staan. Stedelijke allure en landelijke gemoedelijkheid. De aanpalende uitvalswegen en korte afstand naar de A6 en de A 28 geven bewoners goede ontsluitingsmogelijkheden.

Er worden een 3-tal type woningen ontwikkeld, welke op ruime kavels van 800 m² volledig tot hun recht komen. Onder architectuur gebouwd, allure uitstralend in een stratenopzet die leidt tot onderlinge verbondenheid en een gevoel van privacy. Halfhoog opgetrokken kavelwallen inclusief smeedijzeren toegangshek geven de woningen extra cachet.

Bogey
Een mondaine villa die door de rechthoekige vormen gesloten oogt, maar eenmaal binnen verrast door de indeling. Vooral de losstaande keukenwand geeft de woning een eigenzinnig en veelzijdig karakter. Hoewel afgeschermd, sluit de keuken qua beleving toch volledig aan bij de royale zitkamer en eethoek.
Op de begane grond aan de achterzijde een grote slaapkamer met naastgelegen een badkamer.
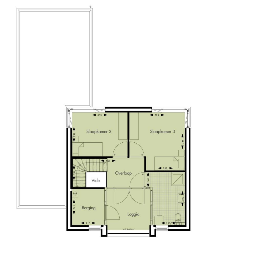
Op de verdieping 2 royale slaapkamers en een tweede badkamer. De grote raampartij aan de voorzijde zorgt voor een prettige lichtinval op zowel overloop als slaapkamer.

Inhoud (incl. garage) 602 m³
Totale woonoppervlakte 155 m²
Overige inpandige ruimte 17 m²

Verkoopprijs vanaf € 472.400,- v.o.n.

Eagle
Een elegante en strakke woning met veel ruimte en statige uitstraling. De ruime zit- annex woonkamer met veel lichtinval, bepaalt het karakteristieke beeld van deze villa. Het lage brede dak geeft een luxe uitstraling. Zeer praktisch zijn de inpandige garage en de achtergelegen ruime slaapkamer met badkamer.
Op de verdieping een compacte prettige indeling. Naast 2 royale slaapkamers, is er een ruime badkamer en berging. De beeldbepalende open loggia aan de voorzijde, geeft extra leefruimte.

Inhoud (incl. garage, excl. loggia) 514 m³
Inhoud loggia 63 m³
Totaal woonoppervlakte 113 m²
Overige inpandige ruimte (garage) 18 m²
Gebouwgebonden buitenruimte (loggia) 24 m²

Verkoopprijs vanaf € 442.000,- v.o.n.

Birdie
Een geblokte speelse villa met totale woonbeleving. De lange centrale entree verbindt zowel de garage, de bijkeuken, de woonkamer als de achtergelegen slaapkamer met badkamer.
De bovenetage met overloop, 2 royale slaapkamers en een tweede badkamer bereikt u via de trap in de hal.
Eyecatcher op de begane grond is de fraaie erker aan de zijkant; deze ruimte geeft de totale woning een prachtige symmetrische vorm. De erker leent zich, vanwege de grote lichtinval, prima als eethoek. De open keuken bevindt zich aan de voorzijde.
De achtergelegen zitkamer is voorzien van schuifdeuren, waardoor de tuin echt het verlengstuk van deze villa is.

Inhoud (incl. garage) 540 m³
Totaal woonoppervlakte 145 m²
Overige inpandige ruimte (garage) 18 m²

Verkoopprijs vanaf € 440.800,- v.o.n.

Bijzonderheden
– Mogelijkheid de woning naar uw eigen wensen te perfectioneren
– Sprake van mandeligheid t.w. gemeenschappelijk eigendom van een onroerende zaak met een gemeenschappelijk nut; nadere informatie in de brochure
– In de brochure eveneens een duidelijke uiteenzetting van de gebruikelijke procedures en voorwaarden bij het kopen van een nieuwbouwwoning.

Features

Build Year 2013
  • Verwarming: CV_KETEL
  • Bouwvorm: NIEUWBOUW
  • Energyklasse:
  • Woonoppervlakte: 145 m²
  • Inhoud: 540 m³
  • Tuin: TUIN_RONDOM
  • Parkeren:
  • daktype:
  • badkamers_details:
  • Overige Ruimte: BERGING, LOGGIA, OVERLOOP, WASRUIMTE, TOILET, HAL
  • Etage details: Verdieping (Kamers:2 - Slaap:2), Begane grond (Kamers:2 - Slaap:1)
  • Verwarming: CV_KETEL
  • Isolatie:

Location

Property Contact

Address 0, Parkresidentie, 6 villa's, DRONTEN, FLEVOLAND, Nederland, 8251, Nederland

Contact Listing Owner